CPW apartment
- Shiri Amoray
- Nov 7, 2025
- 3 min read
Upper West Side, New York City
1,200SF.

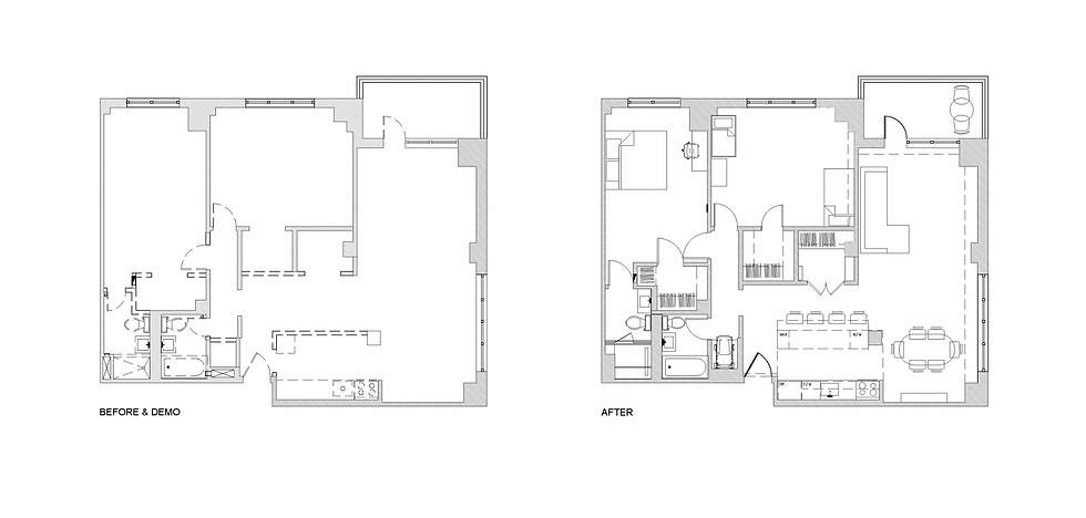
this apartment, located on the 17th floor of a mid-rise building in the Upper West Side neighborhood of New York City, facing Central park with astonishing views ranging from the upper west side to the Upper East Side of Manhattan.
The apartment was purchase by a family with two young children. With the intention to serve as their home for years to come. They asked for an open and airy floor plan, functionality of the space and modern yet warm design esthetic. The apartment wasn’t renovated since was it was built back in 1961. Therefore, it was gutted and some of the systems, such as electricity and plumbing, had to be replaced.
Given the amount of work we had to do, the budget was modest, and we had to prioritize the work to be done and use some creative and inexpensive solution.
First, we removed the wall between the kitchen and the hallway. Installed base cabinets and quartz countertop with overhang for counter stools. By doing that, we created an open floor plan, allowing more light inside the kitchen and foyer, while introducing beautiful views.
The color pallet that was selected for the kitchen was lights gray, oak and white, with brass finished.

We enlarged the foyer closet, as well as the adjacent closet, that is accessed from the kids room and re-arranged them, creating custom storage solutions by using cut to size MDF boards.
In the hallway, adjacent to the kids bathroom, we opened up the Linen closet and created a storage space for the stroller.
We used kitchen cabinets (24" deep) above the stroller, in order to maximize the storage space. These cabinets are being used to store cleaning supply and linen.
The old floor was replaced throughout the apartment with pre-finished 7” wide engineered planks what were buffed and stain with natural satin finish.
Both bathrooms were gutted and new branch lines were installed back to the existing risers.
Owners dreamed of a shower with bench. In order to make this possible, we have enlarged the shower and the bathroom, by adding part of the walking closet area. We managed to create a bench as well as floating shelves for storage.
We have selected large (24” square) beige tiles, and used them for the floor, on top of the radiant heat. Same tiles were used for the walls. Floating oak vanity was installed, with vassal sink and wall mounted faucet. Above, we installed a medicine cabinet with brass frame. This was also the finished chosen for the other fittings and accessories, except from the towel warmer, which is white.
In the kids bath, we choose blue 3x6 tiles for an accent and 12”x24” light gray tiles for the floors and the rest of the walls. Here too, oak vanity was selected (free standing) with brass finishes. For ease, white giving the kids bath, we decided to install only one glass panel with a small hinged door, that is not covering the whole length of the tub.
In both bathrooms, there is an old steam pipe, since there are small children in the apartment, we have created a wood enclosure around the pipe, attaching it to the wall with small magnets, so it can be removed, but not easily for a child. The same idea was used to hold the radiator covers to the wall.
In order to add more lights, white no changeling in the ceiling is allowed, we have installed soffits in the kitchen, living / dining room, kids bedroom abd above the shower. Lutron smart Casseta switches were installed and lights can be controlled from the phone.
In the balcony, luck in wooden tiles were installed, as well as green partition and market lights.


Contractor:YH Design
Electricity: Modern Voltage
Plumbing: KOS Plumbing & Heating
Kitchen: Quality Kitchen & Bath
Photography: Alex Staniloff




































Comments